Apartamento Luis Gustavo e Priscila – 2011
Neste apartamento de um quarto em Belo Horizonte, uma pequena sala é o objeto de projeto. Com menos de 16 metros quadrados ela tem o objetivo de ser espaçosa e funcional.
Um antigo móvel ocupa parte significativa da circulação e colabora com a sensação de amplitude reduzida, principalmente por ser robusto e escuro.
A proposta arquitetônica trabalha com técnicas envolvendo cores e iluminação, aliadas a tecnologia disponível na industria moveleira quanto aos projetos de marcenaria.
Acima – Planta de Layout
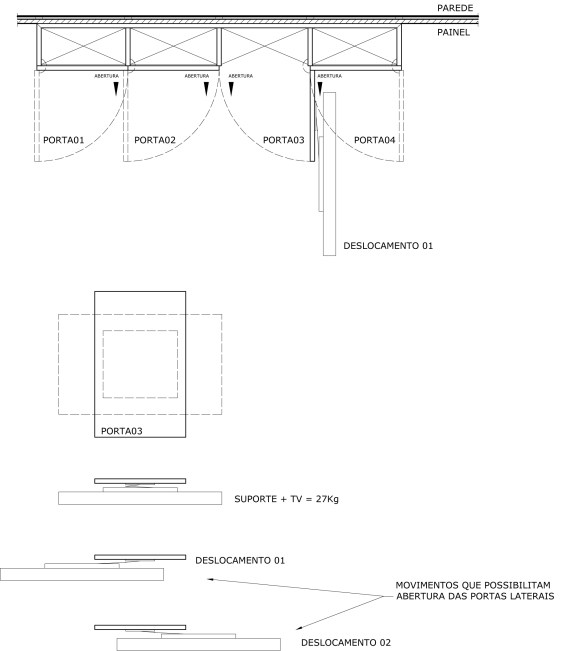
O destaque do projeto fica para o móvel fixado sobre o painel da parede principal da sala. Este móvel possui além de possuir um armário e prateleiras, também recebe um suporte móvel flexível que sustenta e movimenta a televisão, permitindo que o espaço da mesma seja utilizado de forma livre.
Acima – Perspectiva da sala
Abaixo – Funcionamento do painel 
Abaixo – Perspectiva ilustrando distribuição espacial do mobiliário no restante da sala



Deixe um comentário